Drawing of doctor office 2d details AutoCAD file
Description
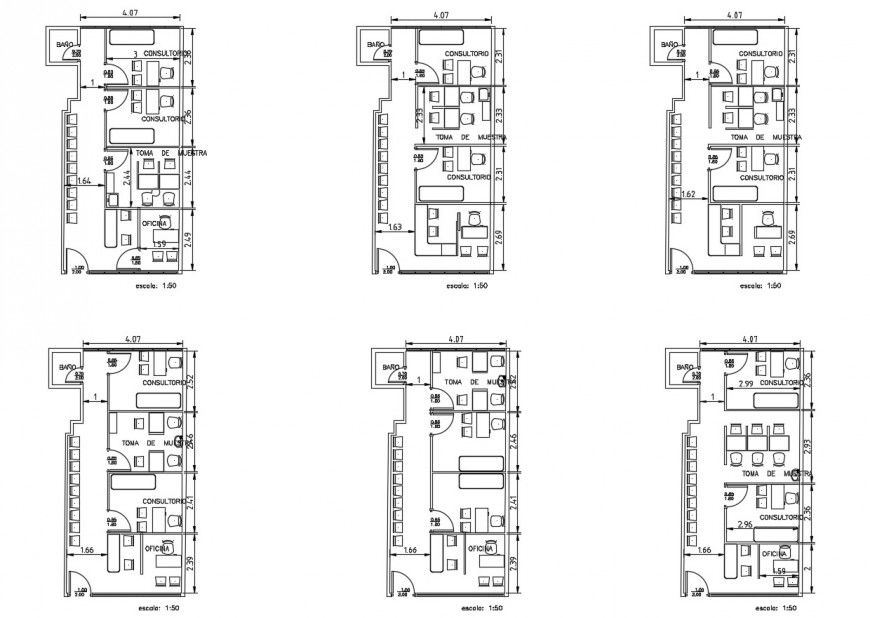
Drawing of doctor office 2d details AutoCAD file which includes first floor, second floor, third floor, fourth floor, fifth floor, sixth floor, seventh floor, eight floors, ninth floor with details of waiting, reception, consultant room, office room, toilets etc.
Uploaded by:
Eiz
Luna

