Drawing of four-star hotel 2d details AutoCAD file
Description
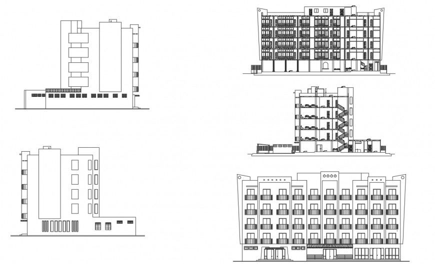
Drawing of four-star hotel 2d details AutoCAD file which includes front, right and left side elevation with details of entrance, balcony, windows, all floors, roofs, doors etc and also includes section of the hotel with details of compound wall, ground floor, first floor, second floor, third floor and fourth floor details, staircase details with dimensions.
Uploaded by:
Eiz
Luna
