Autocad file of four-star hotel 2d details
Description
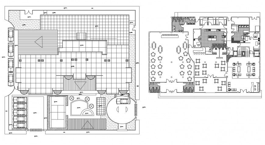
Autocad file of four-star hotel 2d details which includes site layout, ground floor plan, with details of outside dining, inside dining, cafe, wash area, toilets area, bar, reception, waiting, sitting, laundry, kitchen, office, storage, staircase, lift, bedrooms, passage, bath, seatings, parking, entrance gate, swimming pool, play area etc.
Uploaded by:
Eiz
Luna

