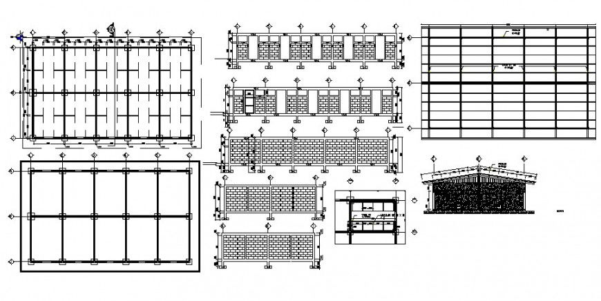
Column and its construction detail of school in auto cad file
Description
Column and its construction detail of school in auto cad file plan include area distribution of school with column mounting position and wall view, elevation include wall and wall support with column support view with necessary dimension.

Uploaded by:
Eiz
Luna

