Residential bungalow plan elevation and section drawing autocad file
Description
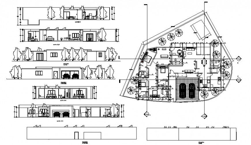
Residential bungalow plan elevation and section drawing autocad file that shows the work plan of the `house with furniture blocks details in building with section line details and parking space details. Floor level details and building elevation with section details of the building are also included in the drawing.

Uploaded by:
Eiz
Luna
