Column and wall foundation detail of laboratory in auto cad file
Description
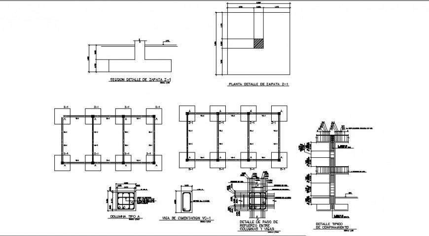
Column and wall foundation detail of laboratory in auto cad file plan include detail of area distribution and column position and wall view column view with column foundation and floor area with necessary detail and dimension.

Uploaded by:
Eiz
Luna

