Pole and bench detail 2d drawing autocad file
Description
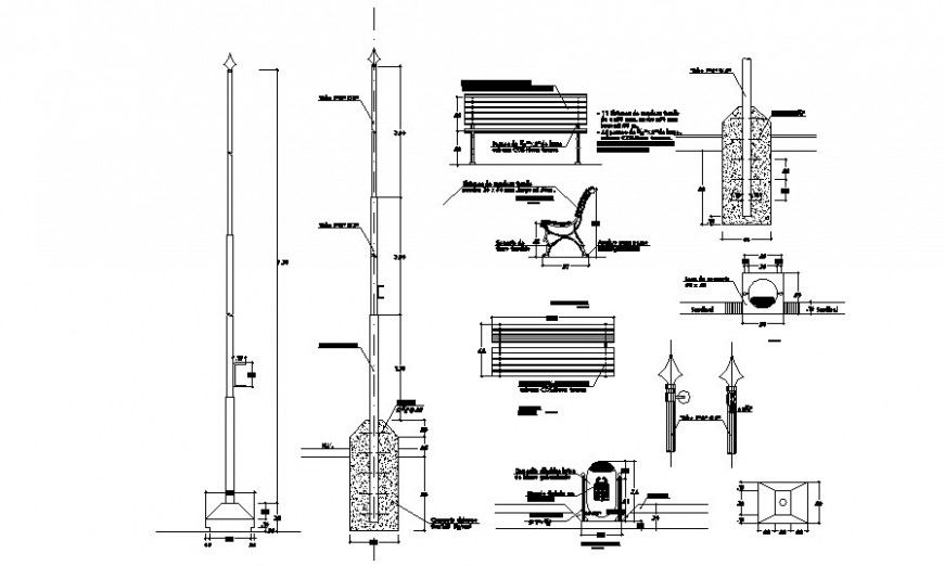
Pole and bench detail 2d drawing autocad file that shows a front elevation of bench and side elevation with dimension and pole details.

Uploaded by:
Eiz
Luna
Pole and bench detail 2d drawing autocad file that shows a front elevation of bench and side elevation with dimension and pole details.

Uploaded by:
Luna