RCC structural units drawing details 2d view autocad file
Description
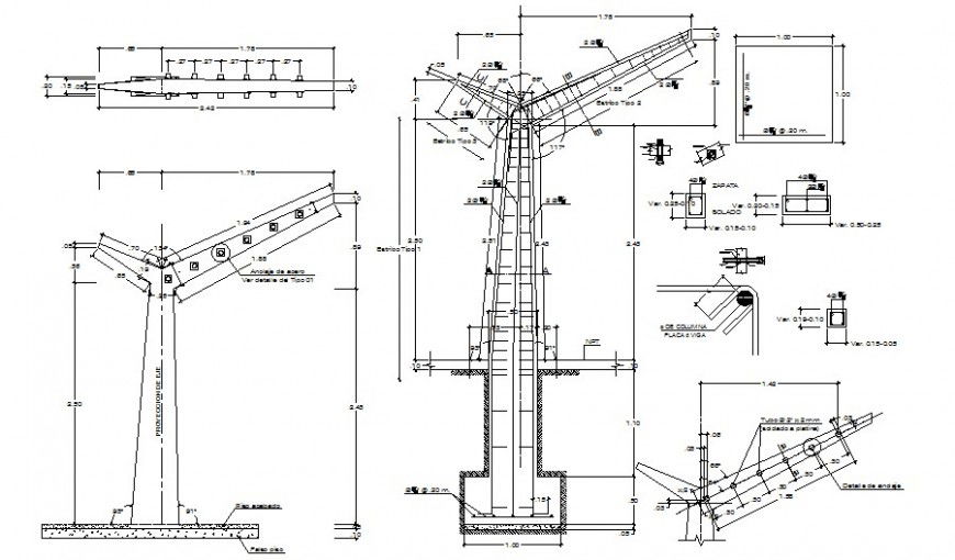
RCC structural units drawing details 2d view autocad file that shows reinforcement details in tension and compression zone with footing details and main distribution hook up and bent up bars details are also shown in the drawing. The structure is a reinforced concrete cement (RCC) structure.
File Type:
DWG
File Size:
127 KB
Category::
Construction
Sub Category::
Reinforced Cement Concrete Details
type:
Gold

Uploaded by:
Eiz
Luna

