One story family housing units details work plan autocad file
Description
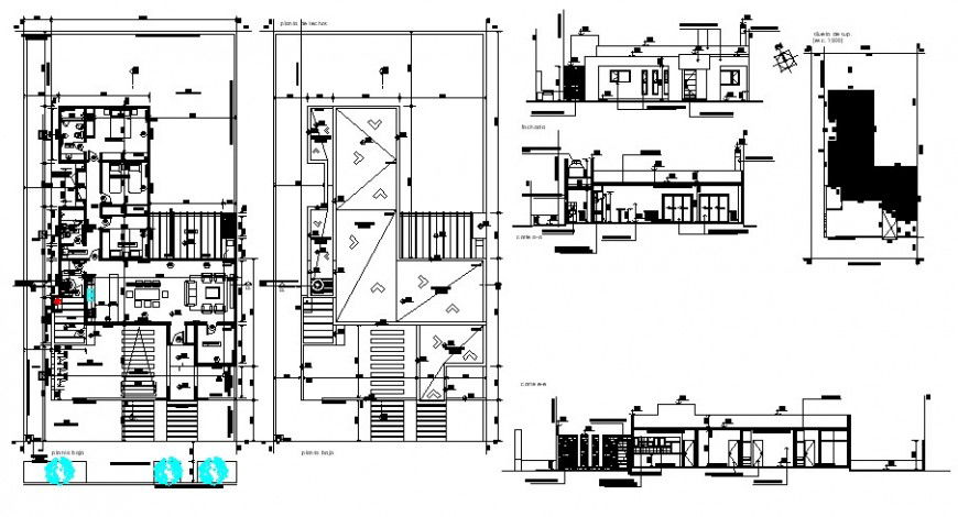
One story family housing units details work plan autocad file that shows floor level details with floor plan and terrace plan details of the house. Different sides elevation and sectional details of the house with dimension and leveling details are also shown in the drawing.

Uploaded by:
Eiz
Luna

