Building drawing elevation plan and a section with electrical installation dwg file
Description
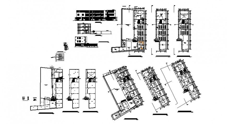
Building drawing elevation plan and a section with electrical installation dwg file that shows work plan drawing of building with electrical installation details with section line details and Building section and building different sides elevation are also included in the drawing.

Uploaded by:
Eiz
Luna

