Rcc structural units drawing with other construction units dwg file
Description
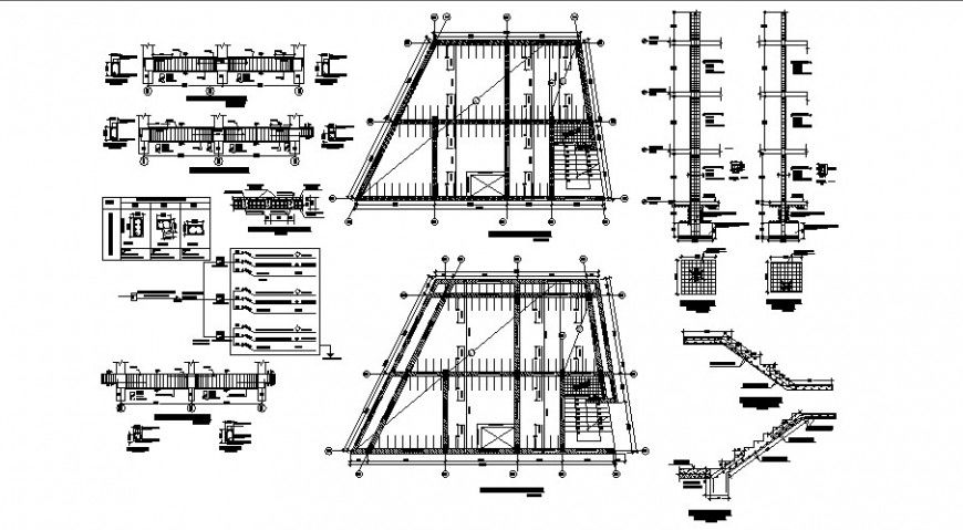
Rcc structural units drawing with other construction units dwg file that shows reinforcement details in tension and compression zone with specification details and legends details. Staircase and footing details are also included in the drawing.
File Type:
DWG
File Size:
1.5 MB
Category::
Construction
Sub Category::
Reinforced Cement Concrete Details
type:
Gold

Uploaded by:
Eiz
Luna
