Health center building details 2d view work plan drawing autocad file
Description
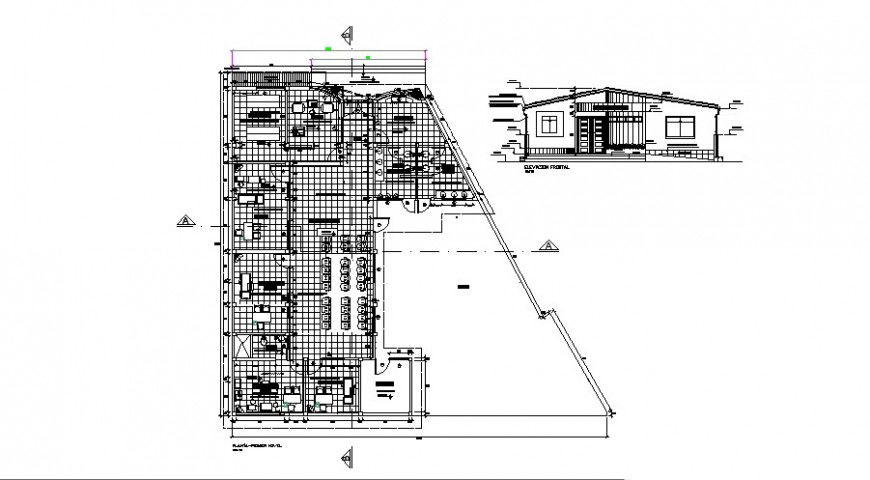
Health center building details 2d view work plan drawing autocad file that shows a work plan of building with furniture blocks with front elevation of the building. Dimension and hidden line details with sanitary toilet and bathroom blocks details are also included in the drawing.

Uploaded by:
Eiz
Luna

