Sanitary toilet blocks work plan and sectional drawings in autocad
Description
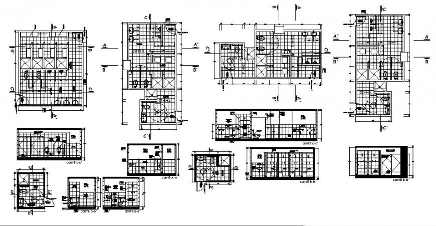
Sanitary toilet blocks work plan and sectional drawings in autocad that shows sanitary toilet plan details with sanitary units details of washbasin water closet tap and faucets details. Dimension and section line details with sectional details of sanitary units also shown in the drawing.
File Type:
DWG
File Size:
2.6 MB
Category::
Dwg Cad Blocks
Sub Category::
Sanitary CAD Blocks And Model
type:
Gold

Uploaded by:
Eiz
Luna

