Drawing of mini restaurant 2d details AutoCAD file
Description
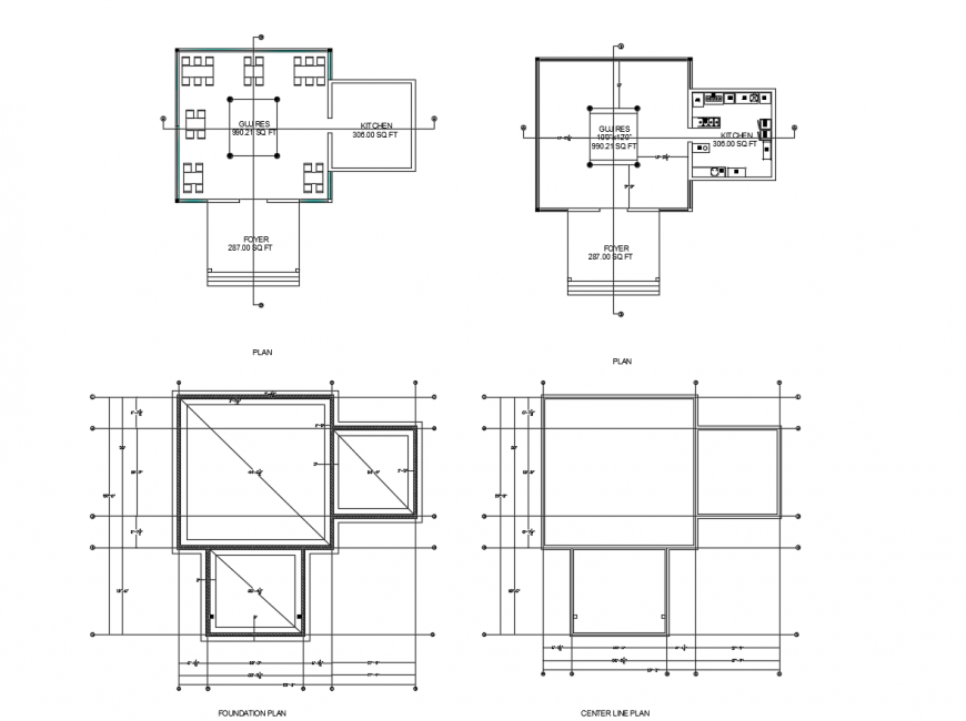
Drawing of mini restaurant 2d details AutoCAD file which includes a foundation plan, centerlines plan, plan with details of the kitchen, foyer, dining area, steps, kitchen platform etc details with dimensions
Uploaded by:
Eiz
Luna

