Drawing of modern house plan with details AutoCAD file
Description
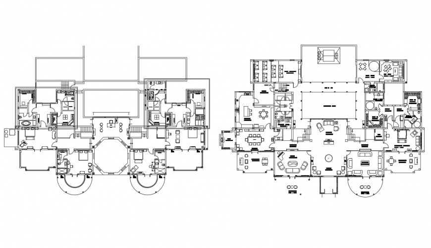
Drawing of modern house plan with details AutoCAD file which includes ground floor and first floor with details of the kitchen, bedroom, dinnig, drawing room, swimming pool, passage, living room, lounge, passage, dressing room, varndha, puja, wash, staircase, home theater etc details.
Uploaded by:
Eiz
Luna
