Column structure details 2d view construction units dwg file
Description
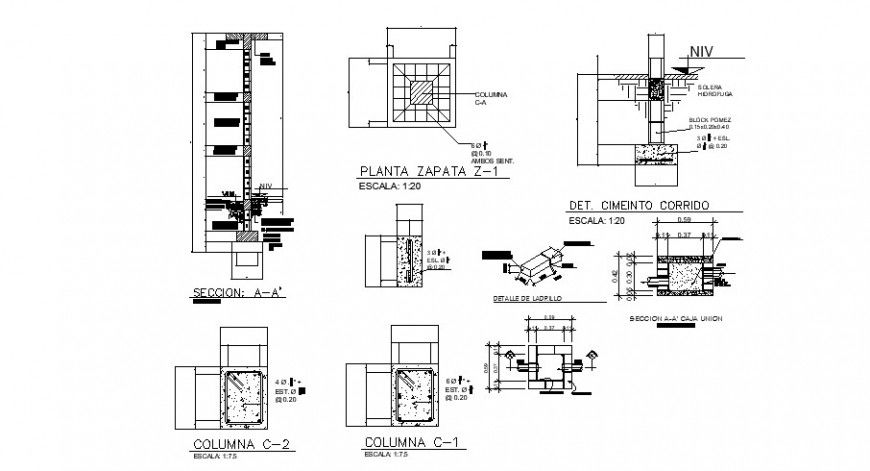
Column structure details 2d view construction units dwg file that shows concrete masonry details with a scale of 1:75 and reinforcement details in tension and compression zone. The structure is a reinforced concrete cement (RCC) structure.
File Type:
DWG
File Size:
3.1 MB
Category::
Construction
Sub Category::
Construction Detail Drawings
type:
Gold
Uploaded by:
Eiz
Luna

