Restaurant building elevation and sectional units dwg file
Description
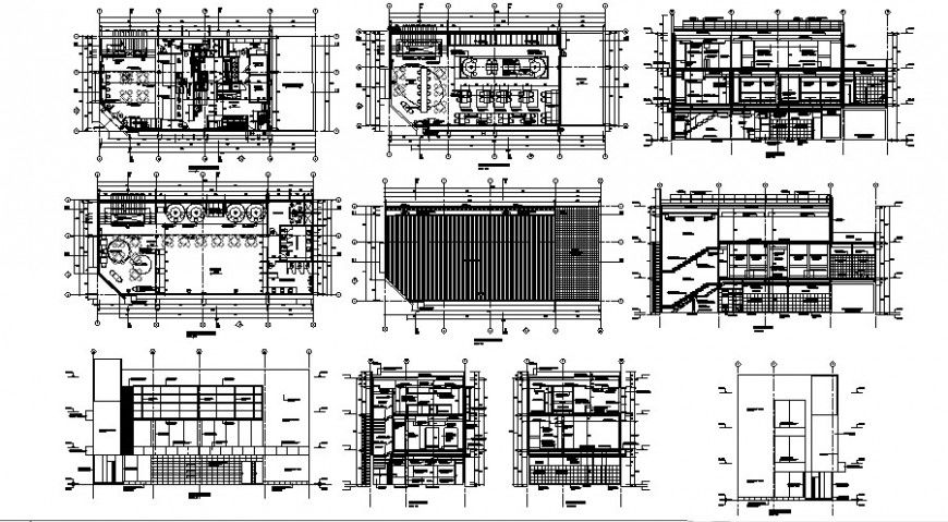
Restaurant building elevation and sectional units dwg file that shows work plan of building with furniture blocks details and building section line and building sections details are also included in the drawing. Furniture layout plan and terrace plan details are also shown in the drawing.

Uploaded by:
Eiz
Luna

