Drawing of electric room and transformer 2d details AutoCAD file
Description
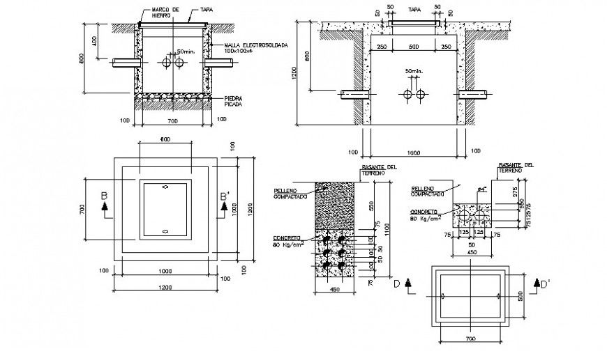
Drawing of electric room and transformer 2d details AutoCAD file which includes power transformer channel diagram, plan of electric room and transformer room, high voltage universities, etc details.
Uploaded by:
Eiz
Luna

