2d details of library sanitary installation design autocad file
Description
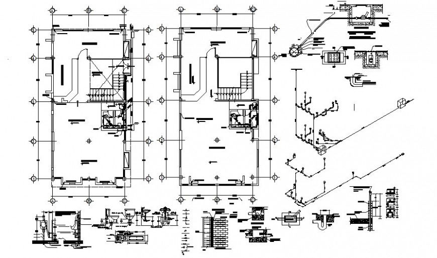
2d details of library sanitary installation design autocad file which includes first-floor plan, second-floor plan with details of lecture area, toilets, information area, reception, library area, staircase, and also include a section of wc, urinals, washbasin, connection isometric diagram etc details with dimensions.
Uploaded by:
Eiz
Luna

