autocad plan drawing of bridge plan

autocad plan drawing of  bridge plan
Profile

Uploaded by:

Eiz

Luna

Description

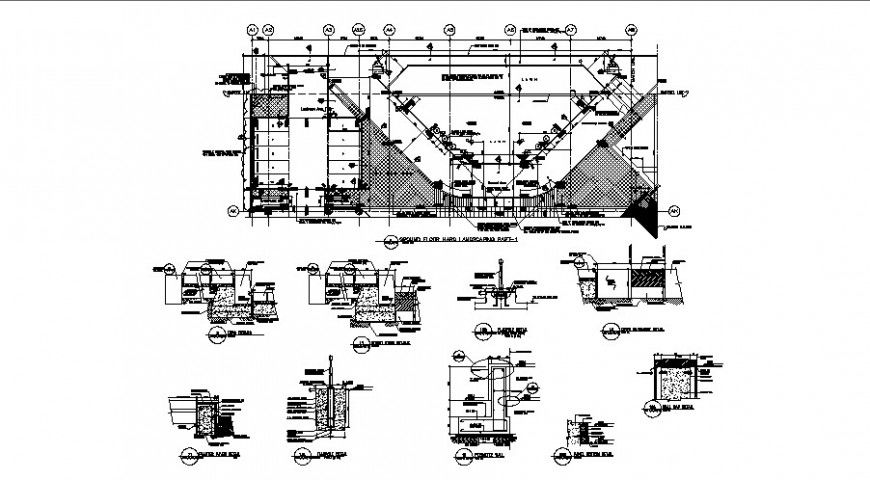
This is autocade plan it shows bridge plan that shows concrete masonry details with reinforcement details in tension and compression zone. The structure is a reinforced concrete cement (RCC) structure.

Profile

Uploaded by:

Eiz

Luna

find Latest

Related Files

WhatsApp Chat