DWG file of house design 2d details AutoCAD file
Description
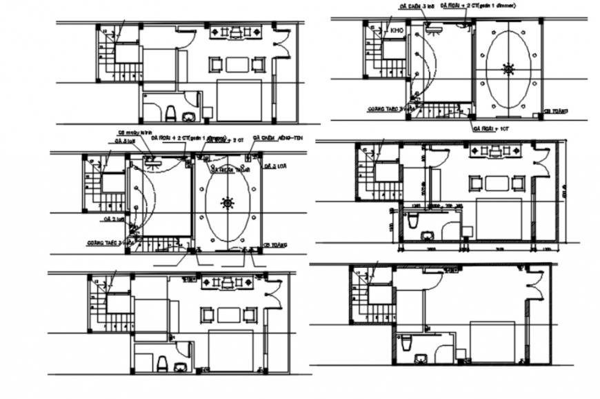
DWG file of house design 2d details AutoCAD file which includes plan of the house and section of the house with details of the staircase, ventilation, sofa, toilets, wc, urinals, washbasin, cabinet, overhead cabinet, bed, chairs, center table etc details with dimensions and also includes ceiling and flooring details.
Uploaded by:
Eiz
Luna
