Drawing of house design 2d details block autocad file
Description
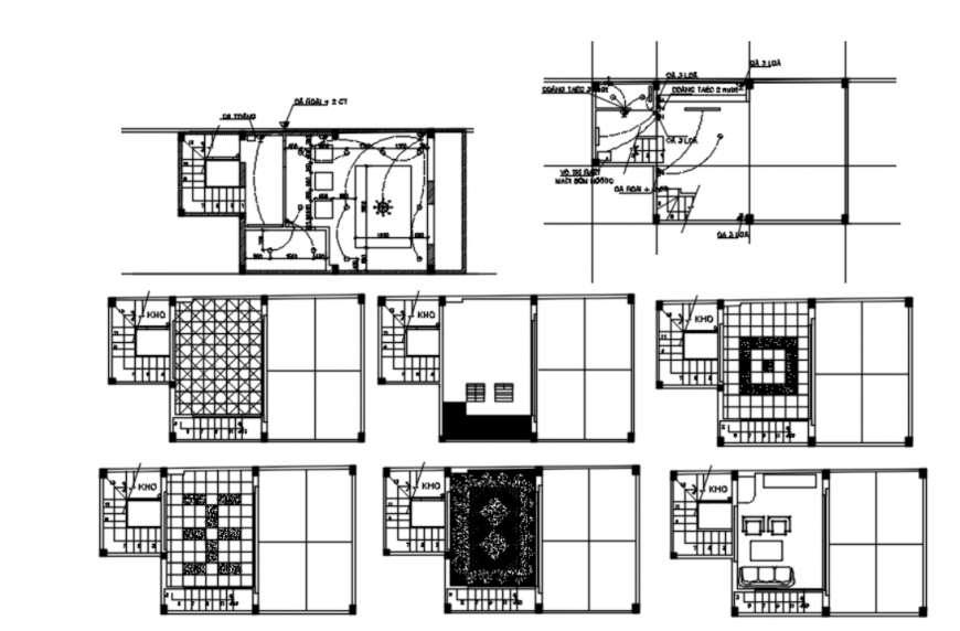
Drawing of house design 2d details block autocad file which includes plan of the house and section of the house with details of staircase, ventilations, sofa, with dimensions and also includes ciling and flooring details.
Uploaded by:
Eiz
Luna

