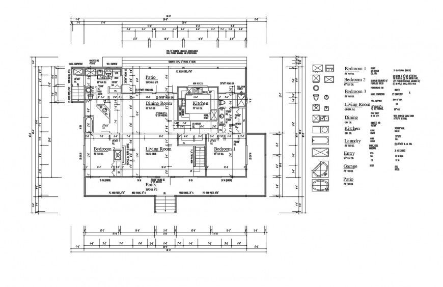
Floor plan and floor framing plan structure details of house dwg file
Description
Floor plan and floor framing plan structure details of house that includes a detailed view of main entry house door, drawing room and living room with family hall details kitchen and dining area, indoor staircases and laundry area and balcony, details and bedroom or master bedroom with Steel pipe column with beam schedule details, dimensions details, measures and much more of house details.

Uploaded by:
Eiz
Luna

