Detail of footing and RCC structure autocad drawing
Description
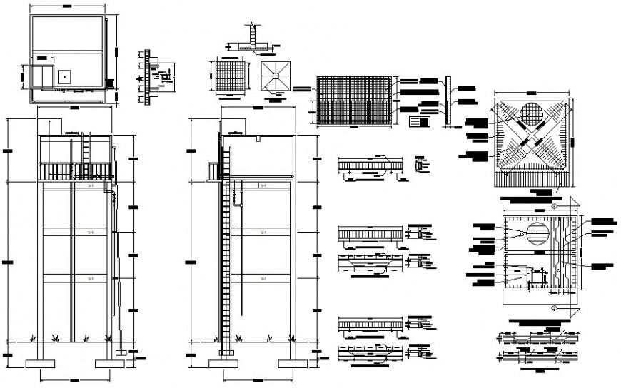
Detail of footing and RCC structure autocad drawing which shows reinforcement details in tension and compression zone which also includes footing foundation details with dimension and hidden line details. Concrete masonry details and the structure is a reinforced concrete cement (RCC) structure.

Uploaded by:
Eiz
Luna

