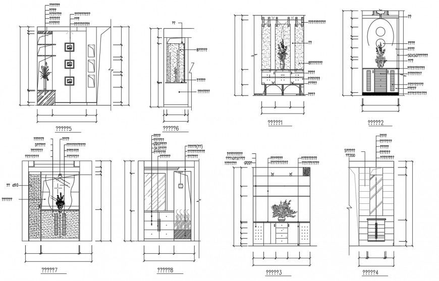
Entrance side table elevation, section and auto-cad drawing details for drawing room dwg file
Description
Entrance side table elevation, section and auto-cad drawing details for drawing room that includes a detailed view of table block, flower pot details, cabinet details etc with drawer details, shelving details, colors details, size details, type details etc furniture blocks for multi purpose uses for cad projects.

Uploaded by:
Eiz
Luna

