Local restaurant architecture layout plan cad drawing details dwg file
Description
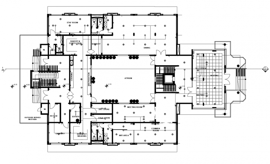
Local restaurant architecture layout plan cad drawing details that includes a detailed view of car parking view with garden area, reception area with waiting lounge, dining area with banquet hall and kitchen and cleaning department details and staff room and sanitary facilities provides with furniture details with interior details and much more of restaurant project with free download auto-cad file.

Uploaded by:
Eiz
Luna

