High story Building plan and section drawing in AutoCAD
Description
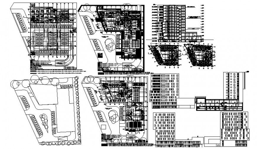
High story Building plan and section drawing in AutoCAD which includes work plan of building with dimension and hidden line details with elevation and sectional details of the building. Parking space details and parking system details are also included in the drawing.

Uploaded by:
Eiz
Luna

