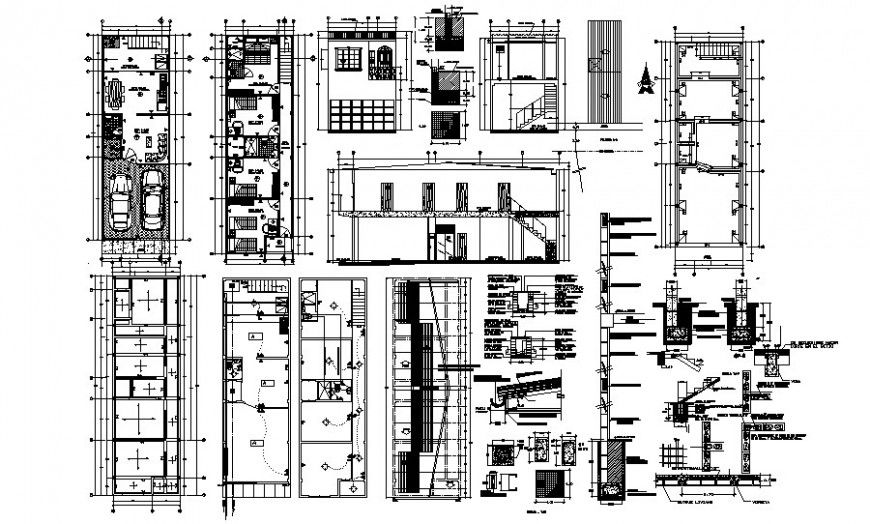
Work plan of Apartment with section drawing in autocad
Description
Work plan of Apartment with section drawing in autocad which includes a floor plan of building with furniture blocks details and sectional details of apartment area also included in the drawing. Parking space and staircase details are also included in the drawing.

Uploaded by:
Eiz
Luna

