Hospital building drawing details in autocad software
Description
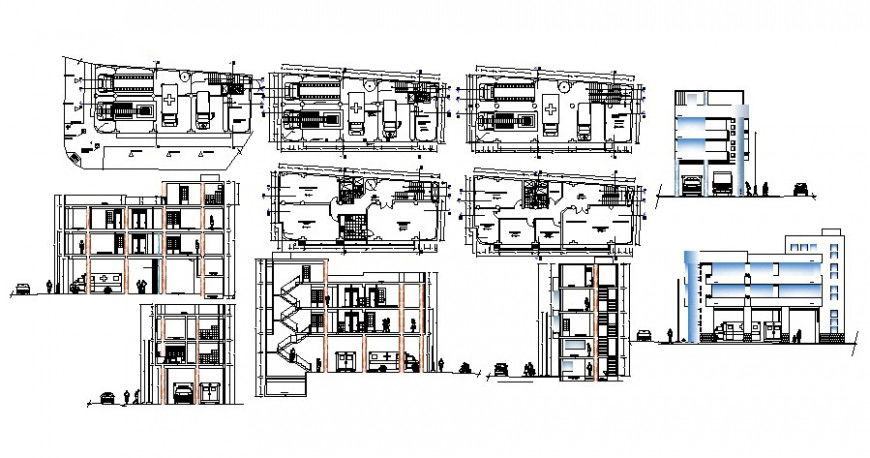
Hospital building drawing details in autocad software which includes work plan of hospital building with ambulance parking space area and different sides of elevation and sectional detail of hospital are also included in the drawing.

Uploaded by:
Eiz
Luna

