Residential apartment elevation plan and section drawing autocad file
Description
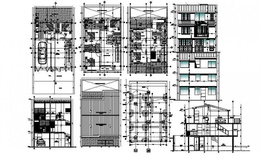
Residential apartment elevation plan and section drawing autocad file which includes work plan of the house with dimension and hidden line details. Furniture blocks details and different sides of elevation and sectional details of the apartment are also included in the drawing.

Uploaded by:
Eiz
Luna
