Residential housing apartment plan elevation and section drawing in AutoCAD
Description
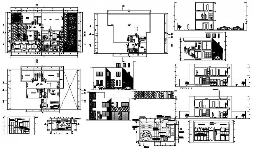
Residential housing apartment plan elevation and section drawing in AutoCAD which includes work plan of a house with furniture blocks details. Different sides of elevation and section of apartment details are also included in the drawing.

Uploaded by:
Eiz
Luna
