Living Apartment design drawing in autocad software
Description
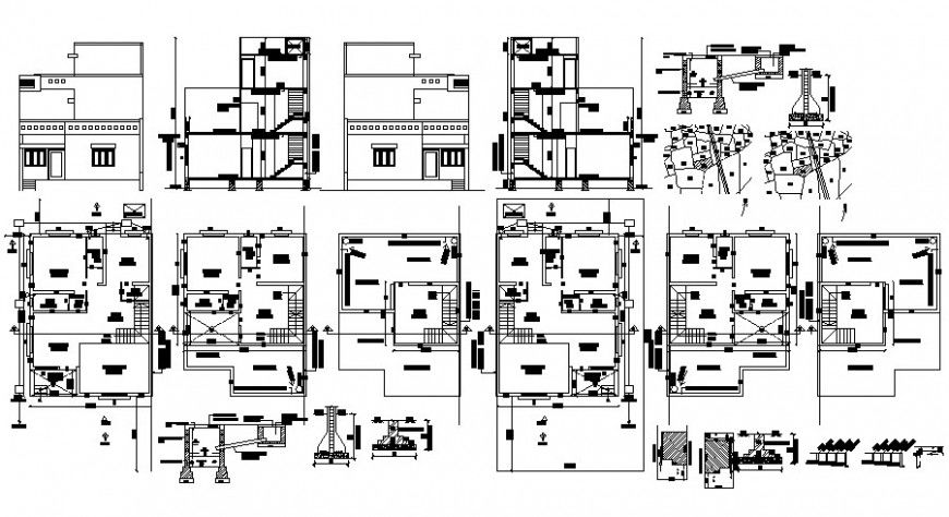
Living Apartment design drawing in autocad software which includes work plan of a house with different sides of elevation and sectional of the house. Dimension and hidden line detail with room interior dimension details are also included in the drawing.

Uploaded by:
Eiz
Luna

