Sanitary bathroom area plan and section drawing in autocad
Description
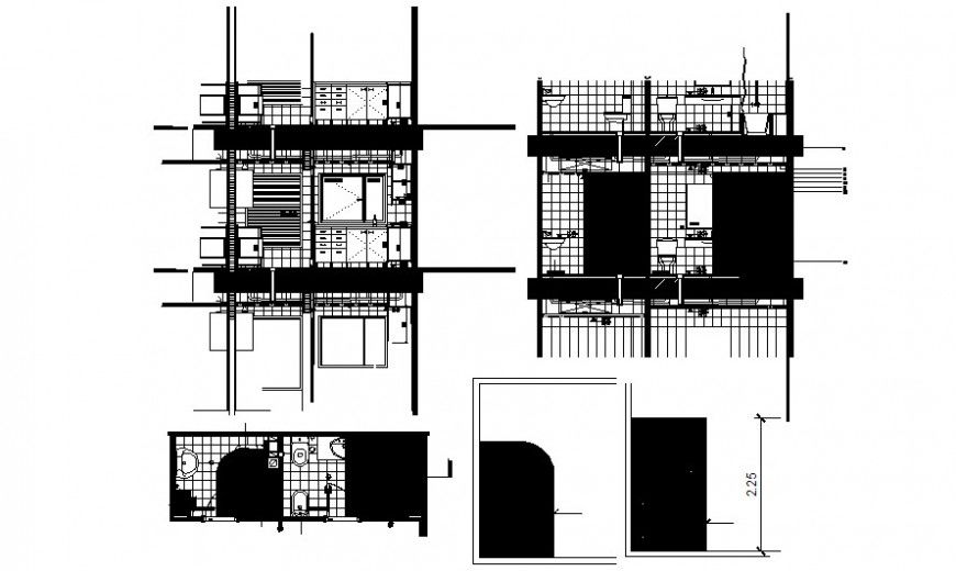
Sanitary bathroom area plan and section drawing in autocad which includes a work plan of sanitary bathroom area with washbasin and bath-tub water closet details are also included. Ventilation and section of the bathroom are also shown in the drawing.
File Type:
DWG
File Size:
477 KB
Category::
Interior Design
Sub Category::
Bathroom Interior Design
type:
Gold

Uploaded by:
Eiz
Luna

