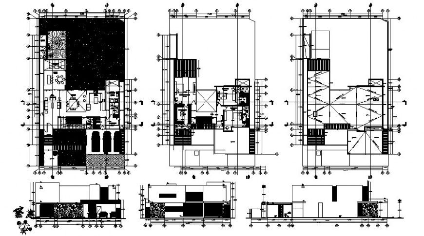
Bungalow design plan and elevation drawing in autocad
Description
Bungalow design plan and elevation drawing in autocad which shows work plan of the house with dimensions and hidden line details. furniture blocks details and different sides of elevation are also included in building area.

Uploaded by:
Eiz
Luna

