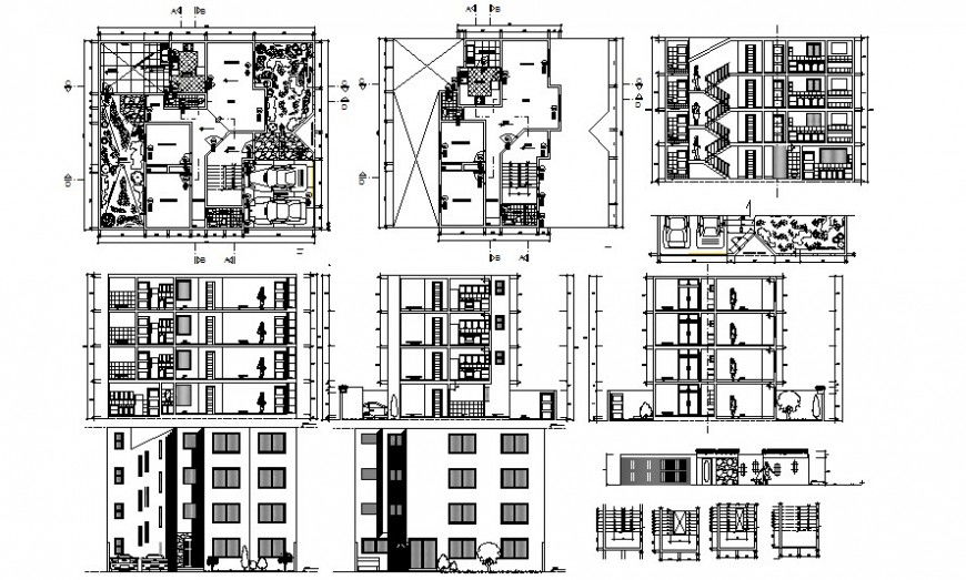
Work plan of apartment drawing in autocad file
Description
Work plan of apartment drawing in autocad file which includes a work plan of building with furniture blocks details and elevation and section of the apartment. Different sides of elevation and section of building details are also included in the drawing.

Uploaded by:
Eiz
Luna
