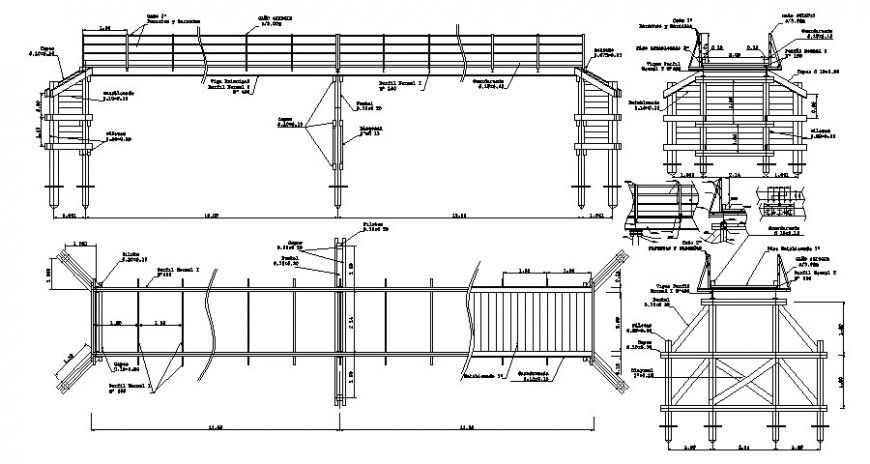
Bridge structure elevation and plan drawing in autocad
Description
Bridge structure elevation and plan drawing in autocad which includes bridge span details with dimension and hidden line details. Pier supporters and naming texts details are also included in the drawing.

Uploaded by:
Eiz
Luna

