Metallic gate elevation, section and installation cad drawing details dwg file
Description
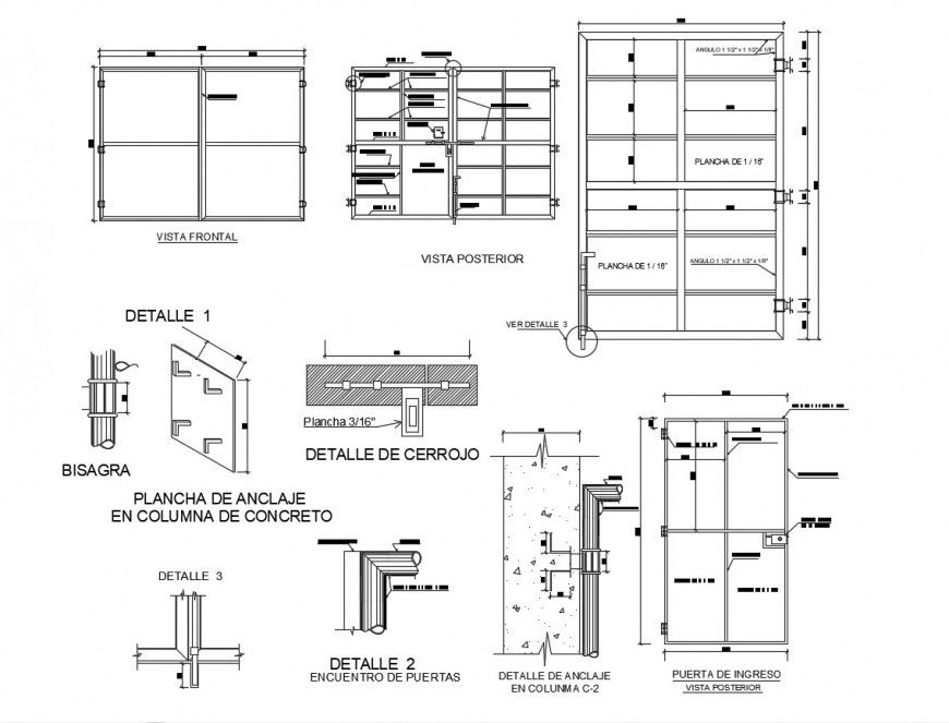
Metallic gate elevation, section and installation cad drawing details that includes a detailed view of front elevation view, brick wall view with sectional details, dimension details, detail of picaporte to the floor, detail of hinge fixing with material and measures details included, not to scale details and much more of gate details.

Uploaded by:
Eiz
Luna

