Metallic fence and gate section and installation cad drawing details dwg file
Description
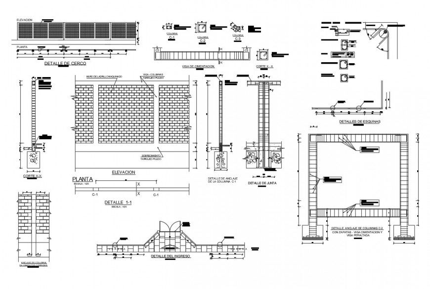
Metallic fence and gate section and installation cad drawing details that includes a detailed view of gate elevation details and sectional details with dimensions details, plan details provided with material details and footings details, design details and scale details with supportive wall details, area and foundation details and much more of fence details.

Uploaded by:
Eiz
Luna

