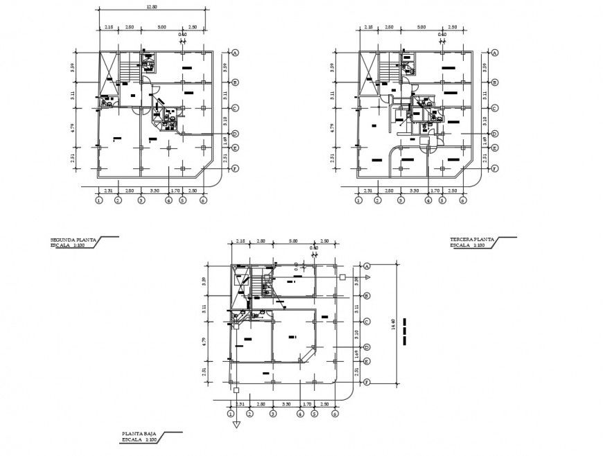
Ground, first and terrace floor distribution details of house dwg file
Description
Ground, first and terrace floor distribution details of house that includes a detailed view of ground floor, first floor etc main entry house door, drawing room and living room with family hall details kitchen and dining area, indoor staircases and laundry area and balcony, details and bedroom or master bedroom, toilets and bathroom with indoor doors, furniture details and much more of house project.

Uploaded by:
Eiz
Luna

