Three floors plan distribution details of residential apartment building dwg file
Description
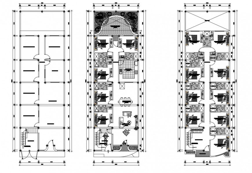
Three floors plan distribution details of residential apartment building that includes a detailed view of ground floor, first floor etc main entry house door, drawing room and living room with family hall details kitchen and dining area, indoor staircases and laundry area and balcony, details and bedroom or master bedroom, toilets and bathroom with indoor doors, furniture details and much more of apartment building project.

Uploaded by:
Eiz
Luna

