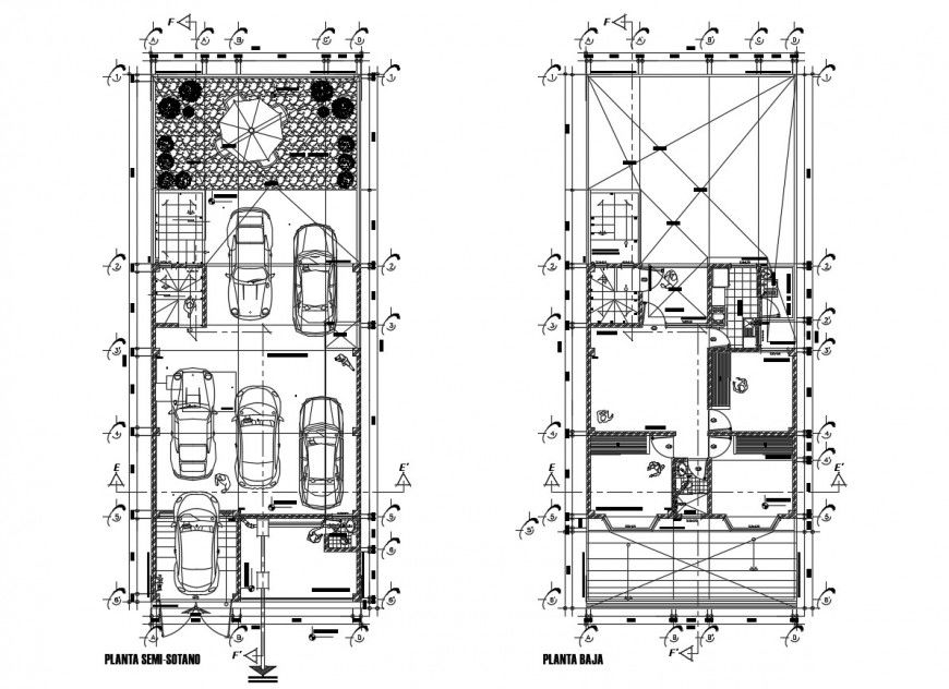
Ground and first floor distribution plan details of residential house dwg file
Description
Download the DWG file showing detailed ground and first floor distribution plans of a residential house. Ideal for architects and planners.

Uploaded by:
Eiz
Luna
