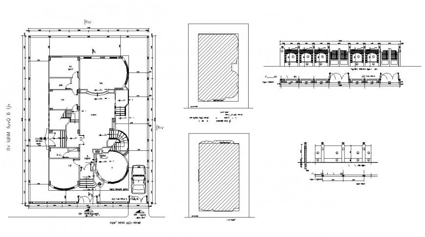
Villa building architecture layout plan and gate cad drawing details dwg file
Description
Villa building architecture layout plan and gate cad drawing details that includes a detailed view of main entry house door, drawing room and living room with family hall details kitchen and dining area, indoor staircases and laundry area and balcony, details and bedroom or master bedroom, toilets and bathroom with indoor doors, furniture details, gate and fence structure details and much more of villa project.

Uploaded by:
Eiz
Luna

