Residential bungalow drawing plan and elevation AutoCAD file
Description
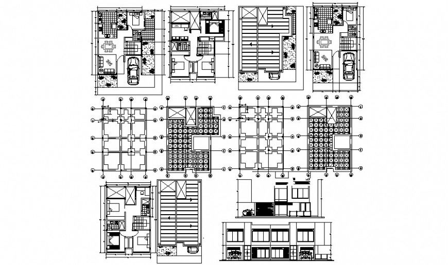
Residential bungalow drawing plan and elevation AutoCAD file which shows the work plan of residential apartment with furniture blocks details and parking space details. Different sides of elevation of building and roof plan details are also included in the drawing.

Uploaded by:
Eiz
Luna

