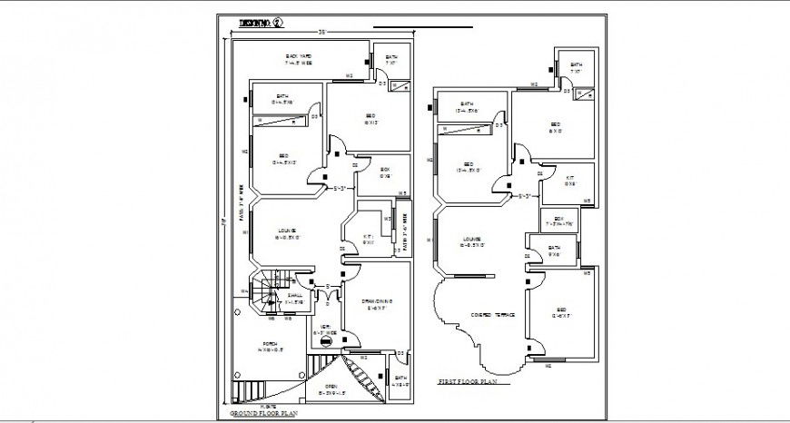
Residential five bedroom bungalow floor plan distribution details dwg file
Description
Residential five bedroom bungalow floor plan distribution details that includes a detailed view of main entry house door, drawing room and living room with family hall details kitchen and dining area, indoor staircases and laundry area and balcony, details and bedroom or master bedroom, toilets and bathroom with indoor doors, furniture details and much more of house project.

Uploaded by:
Eiz
Luna

