Sanitary bathroom plan and sectional drawing in autocad
Description
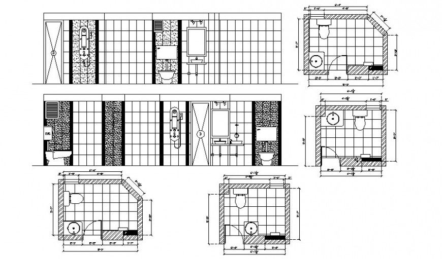
Sanitary bathroom plan and sectional drawing in autocad which includes a work plan of bathroom area with sanitary blocks details of water closet washbasin and other details. Plan and elevation of the bathroom are also included in the drawing.
File Type:
DWG
File Size:
93 KB
Category::
Interior Design
Sub Category::
Bathroom Interior Design
type:
Gold

Uploaded by:
Eiz
Luna

