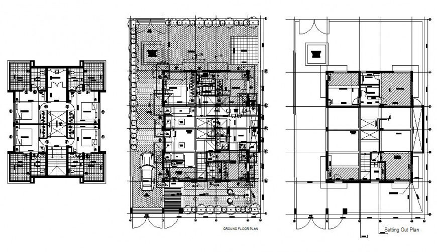
All floors distribution layout plan details of luxuries villa dwg file
Description
All floors distribution layout plan details of luxuries villa that includes a detailed view of ground, first etc with car parking floor, garden area with main entry house door, drawing room and living room with family hall details kitchen and dining area, indoor staircases and laundry area and balcony, details and bedroom or master bedroom, toilets and bathroom with indoor doors, furniture details and much more of villa project.

Uploaded by:
Eiz
Luna

