Bungalow plan and elevation 2d drawing in autocad
Description
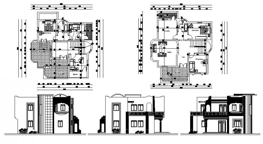
Bungalow plan and elevation 2d drawing in autocad which includes a work plan of the residential house with dimension and staircase details. Floor level and different sides of elevation of houses like front elevation side elevation and rear elevation of the house. Furniture details and other details of rooms are also included in the drawing.

Uploaded by:
Eiz
Luna

