Living apartment details drawing elevation plan and section in autocad
Description
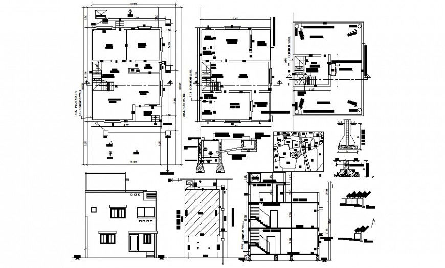
Living apartment details drawing elevation plan and section in autocad which includes Work plan of the house with different sides elevation and section details of the apartment. Floor level and staircase details with dimension and hidden line details are also included in the drawing.

Uploaded by:
Eiz
Luna

