Elevation and plan of building 2d view drawing in autocad software
Description
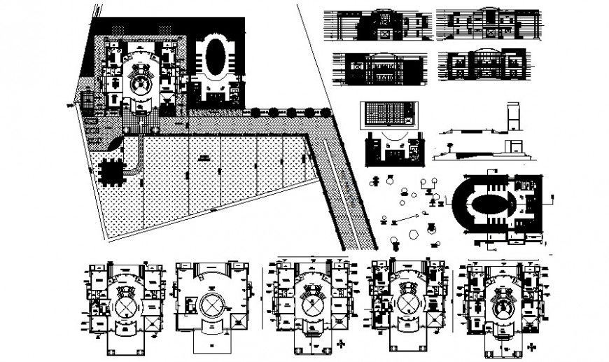
Elevation and plan of building drawing in autocad which includes a work plan of building with dimension and hidden line details. Building different sides elevation and leveling details are also included in the drawing.

Uploaded by:
Eiz
Luna

