Stairway details plan and section 2d drawing in AutoCAD file
Description
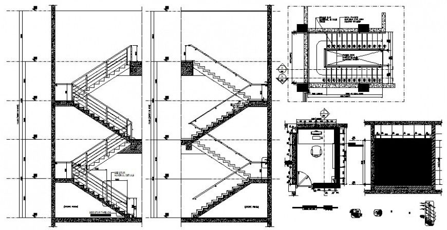
Stairway details plan and section 2d drawing in AutoCAD file which includes riser and treads details of the staircase with steps and railing details. Section line and section details of staircase details are also included in the drawing.

Uploaded by:
Eiz
Luna

